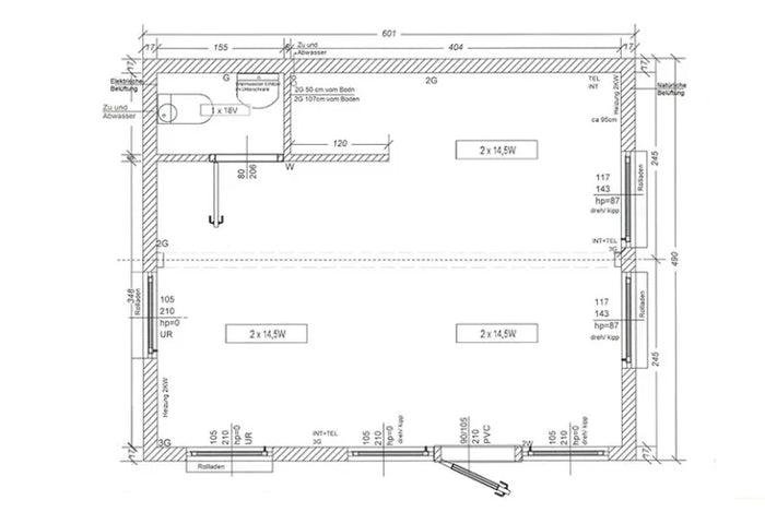
Dimensiones exteriores del contenedor
Largo 6010mm
Anchura 4900mm
Altura 2750 mm
Dimensiones internas del contenedor
Longitud 5670mm
Anchura 4560mm
Altura 2500mm
construcción
Marco de soporte
Perfiles conformados en frío #3 #4 #5 mm Chapa galvanizada 0,5 mm
Techo
Chapa galvanizada lisa de 0,5 mm en el exterior. Inclinación del tejado 2%. Aislamiento con lana mineral prensada 100 mm
Techo
Panel OSB de 15 mm, acabado Rigips o paneles de PVC blanco
Paredes interiores
Chapa trapezoidal galvanizada T6 revestida por ambas caras con una capa protectora coloreada, lana mineral prensada de 100 mm. Paneles Rigibs o PCV con acabado de madera impregnada.
Tabiques
Construcción de madera impregnada. Panel OSB de 12 mm como aislamiento acústico, acabado de lana rígida o paneles PCV.
Suelo
Carga máxima 200 kg/m² Chapa galvanizada de 0,5 mm, lana prensada de 100 mm, panel OSB de 22 mm desde el interior, revestimiento de suelo de estructura de madera de PVC.
Puerta exterior 900 mm x 2 100 mm, PVC
Puerta interior 800 mm x 2 100 mm, panelada
Ventana (marco de PVC – doble acristalamiento) 1170 mm x 1430 mm
Ventana (marco de PVC – doble acristalamiento) 1050 mm x 2100 mm




